Neubautraum in Sögel! Eigentumswohnung im 1. Obergeschoss!
49751 Sögel, Etagenwohnung zum Kauf
Kontaktdaten
-
NameHerr Tebbel
-
FirmaTebbel Immobilien GmbH
-
AnschriftClemens-August-Straße 25
49751 Sögel -
E-Mail
-
Telefon
-
Fax05952 - 2237
-
Website
Objektdaten
-
Objekt-ID2643
-
ObjekttypenEtagenwohnung, Wohnung
-
Adresse49751 Sögel
Niedersachsen -
Etage1
-
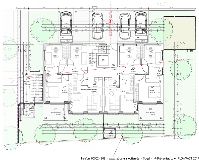
Wohnfläche ca.80,18 m²
-
Zimmer4
-
Schlafzimmer3
-
HeizungsartZentralheizung
-
Wesentlicher EnergieträgerStrom
-
Baujahr2024
-
ZustandErstbezug
-
Käuferprovision2,975 % inkl. MwSt.
-
Kaufpreis282.000 EUR
Ausstattung / Merkmale
- ✓ Außenstellplatz
- ✓ Keller
- ✓ Neubau
- ✓ Personenaufzug
Energieausweis
-
EnergieausweistypBedarfsausweis
-
Ausstellungsdatum10.06.2025
-
Gültig bis10.06.2035
-
GebäudeartWohngebäude
-
Baujahr lt. Energieausweis2024
-
PrimärenergieträgerStrom
-
Endenergiebedarf15,30 kWh/(m²·a)
-
EnergieeffizienzklasseA+
Objektbeschreibung
Beschreibung
Entdecken Sie Ihr neues Zuhause mit einer hochwertigen Ausstattung, ansprechender und durchdachter Architektur. Profitieren Sie von einer schönen Umgebung und der zugleich guten Infrastruktur von Sögel. In einer zentralen Ortslage entsteht dieses attraktive Neubauvorhaben. Es wird hohen und modernen Wohnansprüchen in jeder Hinsicht gerecht. Die insgesamt nur 5 Eigentumswohnungen mit sehr interessanter Architektur, individuellen Grundriss- und Raumplanungen sowie Wohnungsgrößen zwischen ca. 79 m² bis 128 m² Wohnfläche bieten verschiedenen Zielgruppen ein neues Zuhause. Großzügige Terrassen/Balkone/Dachterrassen, interessante Fenstergestaltungen und freundliche Wohnräume geben diesem Haus den besonderen Charme. Hell und großzügig präsentieren sich diese anspruchsvollen Eigentumswohnungen und entfalten insbesondere über die gelungene Raumaufteilung hinaus ein hohes Maß an Wohnqualität. Besonders hervorzuheben ist der überdachte Balkon, auf der Sie gemütliche Stunden im Freien verbringen können. Ein PKW-Stellplatz, ein Aufzug und ein gesonderter Kellerbereich runden das Angebot ab. Die Wohnung besticht durch ihre moderne Ausstattung und die ansprechende Raumaufteilung. Die Immobilie befindet sich in einer attraktiven Lage und bietet somit eine optimale Wohnqualität. Ideal für Familien, die auf der Suche nach einem neuen Zuhause sind. Die Wohnung ist durch das gemeinschaftlich genutzte Treppenhaus sowie mit dem Fahrstuhl bequem erreichbar. Besonders nennenswert ist der durchdachte Grundriss mit der sehr guten Raumaufteilung. Ein in Richtung Süden ausgerichteter Balkon ist zusätzlich vorhanden. Hier lässt sich der Feierabend bis in die späten Abendstunden genießen.
Ausstattung
- 3 Schlafzimmer
- offener Wohn-, Ess- und Kochbereich
- überdachte Terrasse / Balkon
- Fahrstuhl
- PKW-Stellplatz
- Neubau-Erstbezug
- KfW 40 Standard
Zeitlos hochwertige Materialien warten auf Sie. Ausgewählte Bodenbeläge in Kombination mit der Fußbodenheizung sorgen für eine angenehme Wärme mit modernem Charakter. Die Fenster durchfluten die Räume mit Licht und ermöglichen einen angenehmen Blick in die Nachbarschaft. Zu jeder Wohnung gehört ein Stellplatz, welcher mit einem Preis von 15.000 € bereits im Kaufpreis enthalten ist. Diese Wohnung entspricht genau Ihren Vorstellungen und Wünschen? – schicken Sie uns gerne eine schriftliche Anfrage oder rufen Sie uns einfach an. Sie haben ein zu groß gewordenes Haus und möchten sich mit dieser modernen Neubauwohnung verkleinern? Wir übernehmen für Sie gerne den Verkauf Ihrer Immobilie mit allem was dazu gehört. Stimmen Sie jetzt einen unverbindlichen Beratungstermin mit uns ab.
Sonstiges
Heizungsart: Wärmepumpe
Baujahr: 2024
Befeuerung/Energieträger: Strom
Energieausweistyp: Bedarfsausweis
Energiekennwert: 15,3 kWh/(m²*a)
Energieeffizienzklasse: A+
Bei den Außenansichten, Grundrissplänen und Lageplan handelt es sich um Visualisierungen! Die definitiven Ansichten, Grundrisspläne und Lageplan können Änderungen beinhalten!
Angaben laut Energieausweis:
Baujahr Gebäude: 2024
Befeuerung/Energieträger: Strom
Energieausweistyp: Bedarfsausweis
Energieeffizienzklasse: A+
Energiekennwert: 15,3 kWh/(m²·a)
Energieausweis gültig bis: 10.06.2035
Energieausweisdatum: 10.06.2025
Lage
Sögel ist ein malerischer Ort im Landkreis Emsland im westlichen Niedersachsen. Die Gemeinde Sögel zeichnet sich durch ein charmantes Ortsbild aus, das von dem wunderschönen Schloss Clemenswerth geprägt ist. Der Ortskern von Sögel lädt zum Bummeln und die Schlossanlage zu erholsamen Spaziergängen ein. Die Gemeinde Sögel bietet Ihnen eine Vielzahl von Freizeitmöglichkeiten in der umliegenden Natur sowie Freizeit- und Sportaktivitäten. Sögel liegt auf dem "Hümmling" inmitten einer grünen und hügeligen Landschaft, die zum Wandern, Radfahren und Erkunden einlädt. Alle Einkaufsmöglichkeiten, Krankenhaus - Hümmling-Hospital -, Ärzte, Apotheken, Banken, Schulen, Kindergarten, Freizeit- und Kulturangebote usw. befinden sich in unmittelbarer Nähe und sind in wenigen Gehminuten zu Fuß erreicht.
49751 Sögel, Niedersachsen, Deutschland (auf Google Maps ansehen)









